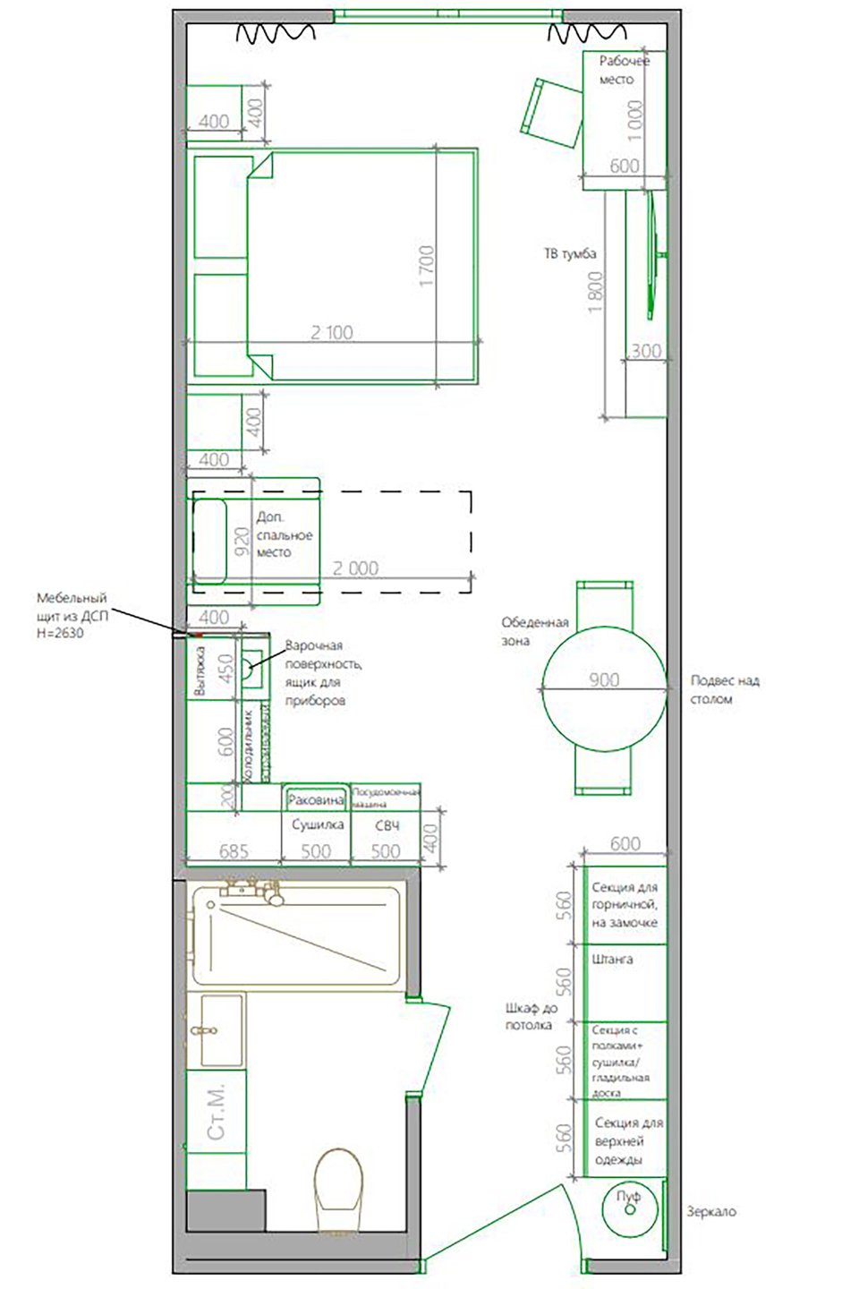
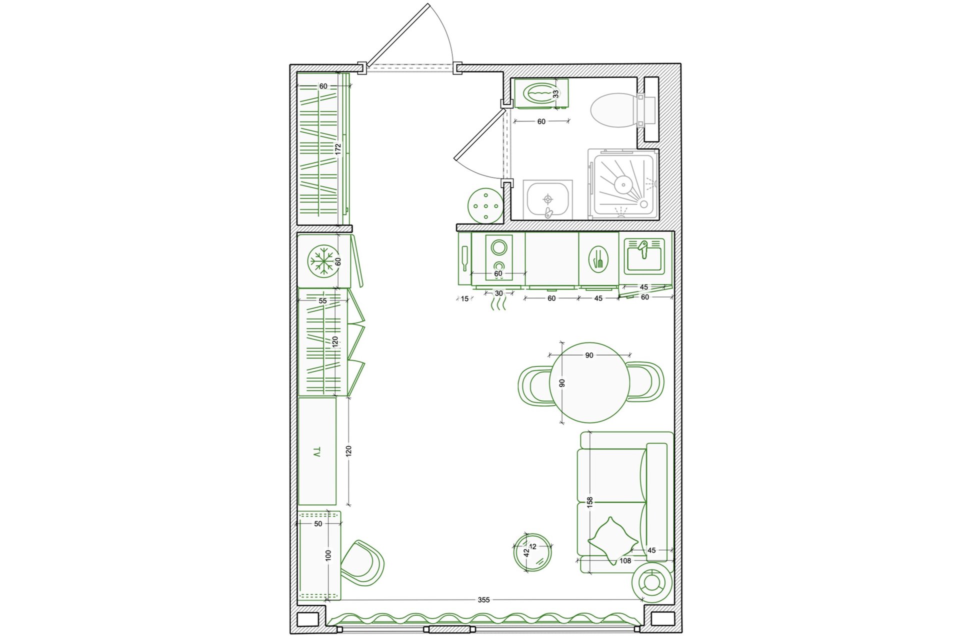
Капсула под сдачу, 30 м²,
Задача: сделать квартиру под сдачу, бюджет ограничен, нужно успеть к дате заселения.
Стиль: скандинавский минимализм
Сроки: 2,5 месяца от замера до ключей
Бюджет: 88 000 ₽/м² (всё включено)
Результат:
Квартира сдана на 15% дороже средней ставки по району, владелица не тратила время на подбор материалов и контроль бригады